ID CP2314425

Apartament cu 2 camere/50 mp/imobil calitativ/CF.

ID CP2314425

99,500 € (negociabil) TVA inclus

Apartament cu 2 camere de vânzare
Eroilor, Floresti
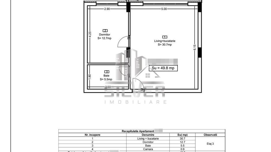
49.8 mp
2024

Silver Imobiliare ofera spre vanzare apartament cu 2 camere situat in Floresti, zona strazii Catanelor la etaj 1 intr-un imobil nou dispus pe 4 niveluri dotat cu lift de 6 persoane.

Apartamentul are suprafata utila de 49.8 mp utili+balcon de 6.6 mp fiind compartimentat astfel:

- camera de zi spatioasa impreuna cu bucataria;

- dormitor;

- baie;

- balcon de 6.6 mp+spatiu de dep.cu acces din camera de zi;

La nivel de constructie si finisaje imobilul se prezinta astfel:

- fundatii, stalpi si plansee din beton armat;

- zidarie din caramida tip Cemacon de 24 cm;

- termosistem cu polistiren de 10 cm/eps 80;

- pereti interiori zugraviti cu vopsea lavabila;

- pardosea cu gresie si parchet laminat;

-usi interioare din Mdf tip Porta Doors;

- aparataje electrice;

-geamuri termoizolante din Pvc cu 3 foi de sticla/4 anotimpuri/5 camere cu profil tip Rehau;

- sistem de incalzire in pardosea cu centrala termica proprie in condensare marca Saunier Duval;

- usa la intrare metalica/antiefractie cu 8 puncte de inchidere;

- lift de 6 persoane tip KLEEMANN;

- acces parcare securizat;

- bransare si contorizare la toate utiliatatile necesare;

La cerere se poate achizitiona parcare supraterana la pretul de 6.000 Euro sau subterana la pretul de 7.500-8.000 Euro.

PRETURILE MENTIONATE IN ANUNT CONTIN TVA-UL DE 21%.

IMOBILUL DETINE EXTRASE CF.

Pentru alte detalii sau programarea unei vizionari contactati-ne cu incredere!

Citește mai mult

  • Tip apartament
    Apartament
  • Compartimentare
    Semidecomandat
  • Număr camere
    2
  • Dormitoare
    1
  • Număr bucătării
    1
  • Număr băi
    1
  • Etaj
    1
  • Suprafață utilă
    49.8 mp
  • Suprafață construită
    60 mp
  • Suprafață totală
    56.4 mp
  • Disponibilitate
    Imediat
  • Orientare
    Nord
  • Confort
    1
  • Stare interior
    Finisat modern
  • Anul finisării
    2024
  • Număr balcoane
    1
  • Imobil
    Bloc de apart.
  • Stadiu construcție
    Finalizată
  • An construcție
    2024
  • Construcție nouă
    Da
  • Tip construcție
    Cărămidă
  • Număr etaje clădire
    4
  • Are demisol
    Da

Facilități

Apă
Apometre
Bucătărie deschisă
Cadă
Canalizare
CATV
Centrală proprie
Contor electric
Contor gaz
Curent
Debara
Ferestre care se deschid
Garaj subteran
Gaz
Geamuri termopan
Geamuri tripan
Gresie
Iluminat stradal
Încălzire prin pardoseală
Interfon
Internet
Izolație exterioară
Lift
Mijloace de transport în comun
Nemobilat
Parcare deschisă
Parchet laminat
Străzi asfaltate
Ușă intrare metal
Uși interior MDF
Vopsea lavabilă
Dorel Lacatus - Silver Imobiliare
Dorel Lacatus
Senior Broker

0770221133


Solicită chiar acum o vizionare
Telefon
Sună acum Solicită vizionare
Necesare:

Site-ul nu poate funcționa corect fără aceste cookie-uri. Vezi cookie-urile

Statistică:

Strângem statistici anonime despre voi, vizitatorii unici, pentru a vă îmbunătăți experiența dumneavoastră. Vezi cookie-urile

Marketing:

Pentru a ne promova mai eficient serviciile noastre, folosim cookies pentru a vă identifica și a vă oferi proprietăți și servicii personalizate. Vezi cookie-urile

Acest site folosește cookies, află detalii. Alege ce tipuri de cookies dorești să permitem: