ID CP2095282

Apartament cu 2 camere/terasa 45 mp/boxa/PRET REDUS!

ID CP2095282

103,000 € (negociabil) TVA inclus

Apartament cu 2 camere de vânzare
Terra, Floresti
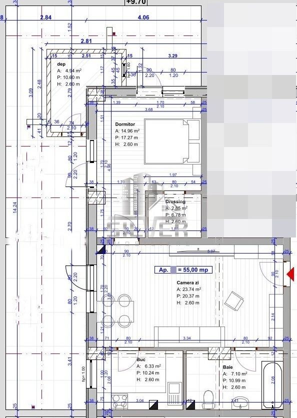
55 mp
2024

Va oferim spre vanzare apartament cu 2 camere situat in Floresti in zona foarte aerisita si linistita la etaj 3 intr-un imobil nou dispus, S+P+3E.

Apartamentul detine 55 mp utili+ terasa de 45+boxa de 5 mp cu acces din interiorul terasei cu urmatoarea compartimentare:

- living spatios;

- dormitor prevazut cu dressing;

- bucatarie inchisa;

- baie;

- terasa de 45 mp cu acces atat din camera de zi cat si din dormitor;

- boxa de 5 mp cu acces din interiorul terasei;

Apartamentul se vinde la stadiul de semifinisat, dupa cum urmeaza:

- fundatii, stalpi si plansee din beton armat;

- zidarie din caramida de 25 cm;

- termosistem cu polistiren de 10 cm/eps 80;

- geamuri termoizolante din Pvc tip Gealan;

- pereti interiori cu 2 straturi de glet;

- sapa de egalizare;

- instalatii electrice si sanitare trase pe pozitii;

- usa la intrare metalica antiefractie cu 6 puncte de inchidere;

- sistem de incalzire cu centrala termica proprie si calorifere;

La nivel de parcari, imobilul detine parcari subterane la pretul de 7.200 Euro.

PRETURILE MENTIONATE IN ANUNT CONTIN TVA-UL DE 21%.

IMOBILUL DETINE EXTRASE CF.

Pentru alte detalii sau programarea unei vizionari contacati-ne cu incredere!

Citește mai mult

  • Tip apartament
    Penthouse
  • Compartimentare
    Decomandat
  • Număr camere
    2
  • Dormitoare
    1
  • Număr bucătării
    1
  • Număr băi
    1
  • Etaj
    3
  • Suprafață utilă
    55 mp
  • Suprafață construită
    66 mp
  • Suprafață totală
    105 mp
  • Suprafață terasă
    45 mp
  • Disponibilitate
    Imediat
  • Orientare
    Vest
  • Confort
    1
  • Stare interior
    Semifinisat
  • Anul finisării
    2024
  • Număr terase
    1
  • Imobil
    Bloc de apart.
  • Stadiu construcție
    Finalizată
  • An construcție
    2024
  • Construcție nouă
    Da
  • Tip construcție
    Cărămidă
  • Număr etaje clădire
    3
  • Număr subsoluri
    1

Facilități

Apă
Apometre
Bucătărie deschisă
Calorifere
Canalizare
CATV
Centrală proprie
Contor electric
Contor gaz
Curent
Debara
Dressing
Ferestre care se deschid
Ferestre PVC
Garaj subteran
Gaz
Geamuri termopan
Iluminat stradal
Internet
Izolație exterioară
Mijloace de transport în comun
Nemobilat
Parcare deschisă
Șapă
Străzi asfaltate
Ușă intrare metal
Vedere panoramică
Dorel Lacatus - Silver Imobiliare
Dorel Lacatus
Senior Broker

0770221133


Solicită chiar acum o vizionare
Telefon
Sună acum Solicită vizionare
Necesare:

Site-ul nu poate funcționa corect fără aceste cookie-uri. Vezi cookie-urile

Statistică:

Strângem statistici anonime despre voi, vizitatorii unici, pentru a vă îmbunătăți experiența dumneavoastră. Vezi cookie-urile

Marketing:

Pentru a ne promova mai eficient serviciile noastre, folosim cookies pentru a vă identifica și a vă oferi proprietăți și servicii personalizate. Vezi cookie-urile

Acest site folosește cookies, află detalii. Alege ce tipuri de cookies dorești să permitem: