ID CP2670866

Apartament cu 3 camere/64.3mp/parcare subterana.

ID CP2670866

123,000 € (negociabil)

Apartament cu 3 camere de vânzare
Eroilor, Floresti
64.3 mp
2021

Silver Imobiliare ofera spre vanzare un apartament cu 3 camere situat in Floresti, zona strazii Eroilor la etaj 1 intr-un imobil dispus , S+D+P+3E prevazut cu lift la 5 minute de mijloacele de transport si magazine.

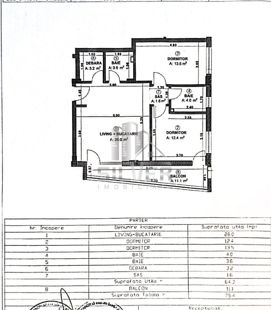
Apartamentul are suprafata utila de 64.3 mp+ balcon de 11.1 mp, fiind compartimentat astfel:

- camera de zi impreuna cu bucataria;

- 2 dormitoare;

- 2 bai;

- debara;

- balcon de 11.1 mp cu acces din camera de zi si dormitorul principal.

La nivel de finisaje apartamentul beneficiaza de pereti zugraviti cu vopsea lavabila si stucco veneziano, pardosea cu gresie in zona de zi si cele 2 bai/ parchet laminat in dormitoare, usi interioare din Mdf tip Porta Doors, geamuri termoizolante din Pvc, usa acces metalica, iar sistemul de incalzire este in PARDOSEA cu centrala termica proprie in condensare marca Ariston.

Se vinde complet mobilat si utilat conform fotografiilor, avand inclusiv masina de spalat vase.

Parcarea se vinde individual la pretul de 8.000 Euro avand CF individual.

DISPONIBIL IMEDIAT SI LIBER DE SARCINI BANCARE.

Apartamentul apare in extrasul de carte funciara situat la parter, fizic fiind etaj 1.

Pentru alte detalii sau programarea unei vizionari contactati-ne cu incredere!

Citește mai mult

  • Tip apartament
    Apartament
  • Compartimentare
    Semidecomandat
  • Număr camere
    3
  • Dormitoare
    2
  • Număr bucătării
    1
  • Număr băi
    2
  • Geam la baie
    Da
  • Etaj
    1
  • Suprafață utilă
    64.3 mp
  • Suprafață construită
    80 mp
  • Suprafață totală
    75.4 mp
  • Disponibilitate
    Imediat
  • Orientare
    Nord-Est
  • Confort
    1
  • Stare interior
    Finisat modern
  • Anul finisării
    2022
  • Număr balcoane
    1
  • Număr garaje
    1
  • Imobil
    Bloc de apart.
  • Stadiu construcție
    Finalizată
  • An construcție
    2021
  • Construcție nouă
    Da
  • Tip construcție
    Cărămidă
  • Număr etaje clădire
    3
  • Număr etaje retrase
    1
  • Număr subsoluri
    1
  • Are demisol
    Da
  • Cadastru
    Există
  • Intabulare
    Există
  • Mod de dobândire
    Contract
  • Certificat Energetic
    Există
  • Clasă Energetică
    B
  • Consum total de energie primară
    132.85 kWh
  • Indice emisii echivalent CO2
    28.07 kg

Facilități

Apă
Aragaz
Bucătărie deschisă
Bucătărie mobilată
Bucătărie utilată
Cabină de duș
Cadă
Canalizare
CATV
Centrală proprie
Contor electric
Contor gaz
Curent
Debara
Ferestre care se deschid
Frigider
Garaj subteran
Gaz
Geamuri termopan
Geamuri tripan
Gresie
Hotă
Iluminat stradal
Încălzire prin pardoseală
Interfon
Internet
Izolație exterioară
Lift
Mașină de spălat rufe
Mașină de spălat vase
Mijloace de transport în comun
Mobilat complet
Parchet laminat
Străzi asfaltate
Supraveghere video
Telecomandă poartă garaj
TV
Ușă intrare metal
Uși interior MDF
Vedere panoramică
Vopsea lavabilă
Dorel Lacatus - Silver Imobiliare
Dorel Lacatus
Senior Broker

0770221133


Solicită chiar acum o vizionare
Telefon
Sună acum Solicită vizionare
Necesare:

Site-ul nu poate funcționa corect fără aceste cookie-uri. Vezi cookie-urile

Statistică:

Strângem statistici anonime despre voi, vizitatorii unici, pentru a vă îmbunătăți experiența dumneavoastră. Vezi cookie-urile

Marketing:

Pentru a ne promova mai eficient serviciile noastre, folosim cookies pentru a vă identifica și a vă oferi proprietăți și servicii personalizate. Vezi cookie-urile

Acest site folosește cookies, află detalii. Alege ce tipuri de cookies dorești să permitem: