ID CP2830497

Apartament cu 3 camere finisat/63.2mp/imobil calitativ/CF.

ID CP2830497

115,000 € (negociabil) TVA inclus

Apartament cu 3 camere de vânzare
Eroilor, Floresti
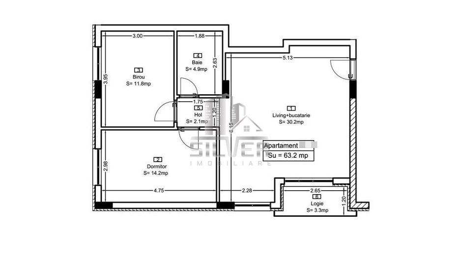
63.2 mp
2025

Silver Imobiliare ofera spre vanzare apartament cu 3 camere situat in Floresti, zona strazii Catanelor la parterul unui imobil nou dispus pe 4 niveluri.

Este orientat sud-vest, are suprafata utila de 63.2 mp utili+logie de 3.3 mp, mp fiind compartimentat astfel:

- camera de zi spatioasa impreuna cu bucataria( posibilitate separare bucatarie)

- 2 dormitoare;

- baie

- logie de 3.3mp;

- hol.

La nivel de constructie si finisaje imobilul se prezinta/se va preda astfel:

- fundatii, stalpi si plansee din beton armat;

- zidarie din caramida tip Cemacon de 24 cm;

- termosistem cu polistiren de 10 cm/eps 80;

- pereti interiori zugraviti cu vopsea lavabila;

- pardosea cu gresie si parchet laminat tip Egger ;

- aparataje electrice;

- usi interioare tip Porta Doors;

- gresie si faianta portelanata de 120X60 cm;

- rezervor wc incastrat+vas wc suspendat;

- lavoar baie+masca suspendata;

-geamuri termoizolante din Pvc cu 3 foi de sticla/4 anotimpuri/5 camere cu profil tip Rehau;

- sistem de incalzire in pardosea cu centrala termica proprie in condensare marca Saunier Duval;

- usa la intrare metalica/antiefractie cu 8 puncte de inchidere;

- lift de 6 persoane tip KLEEMANN;

- acces parcare securizat;

- sistem supraveghere video;

- bransare si contorizare la toate utiliatatile necesare.

La cerere se poate achizitiona parcare exterioara la pretul de 6.000 Euro sa subterana la pretul de 7.500/8.000 Euro, in functie de pozitionare.

PRETURILE MENTIONATE IN ANUNT CONTIN TVA-UL DE 21%.

Pentru alte detalii sau programarea unei vizionari contactati-ne cu incredere!

Citește mai mult

  • Tip apartament
    Apartament
  • Compartimentare
    Semidecomandat
  • Număr camere
    3
  • Dormitoare
    2
  • Număr bucătării
    1
  • Număr băi
    2
  • Etaj
    Parter
  • Suprafață utilă
    63.2 mp
  • Suprafață construită
    75 mp
  • Suprafață totală
    66.5 mp
  • Disponibilitate
    Imediat
  • Orientare
    Sud-Vest
  • Confort
    1
  • Stare interior
    Finisat modern
  • Anul finisării
    2025
  • Număr balcoane
    1
  • Imobil
    Bloc de apart.
  • Stadiu construcție
    Finalizată
  • An construcție
    2025
  • Construcție nouă
    Da
  • Tip construcție
    Cărămidă
  • Număr etaje clădire
    4
  • Are demisol
    Da

Facilități

Apă
Apometre
Bucătărie deschisă
Canalizare
CATV
Centrală proprie
Contor electric
Contor gaz
Curent
Debara
Ferestre care se deschid
Garaj subteran
Gaz
Geamuri termopan
Geamuri tripan
Gresie
Iluminat stradal
Încălzire prin pardoseală
Interfon
Internet
Izolație exterioară
Lift
Mijloace de transport în comun
Nemobilat
Parcare deschisă
Parchet laminat
Străzi asfaltate
Supraveghere video
Telecomandă poartă garaj
Ușă intrare metal
Uși interior MDF
Vopsea lavabilă
Dorel Lacatus - Silver Imobiliare
Dorel Lacatus
Senior Broker

0770221133


Solicită chiar acum o vizionare
Telefon
Sună acum Solicită vizionare
Necesare:

Site-ul nu poate funcționa corect fără aceste cookie-uri. Vezi cookie-urile

Statistică:

Strângem statistici anonime despre voi, vizitatorii unici, pentru a vă îmbunătăți experiența dumneavoastră. Vezi cookie-urile

Marketing:

Pentru a ne promova mai eficient serviciile noastre, folosim cookies pentru a vă identifica și a vă oferi proprietăți și servicii personalizate. Vezi cookie-urile

Acest site folosește cookies, află detalii. Alege ce tipuri de cookies dorești să permitem: