ID CP2438037

Apartament cu 3 camere/93 mp/zona C-tin Brancoveanu.

ID CP2438037

327,000 € (negociabil) + 21% TVA

Apartament cu 3 camere de vânzare
Gheorgheni, Cluj-Napoca
92.8 mp
2025

Silver Imobiliare ofera spre vanzare un apartament de 3 camere, zona strazii Constantin Brancoveanu intr-un imobil exclusiv, de o calitate superioara.

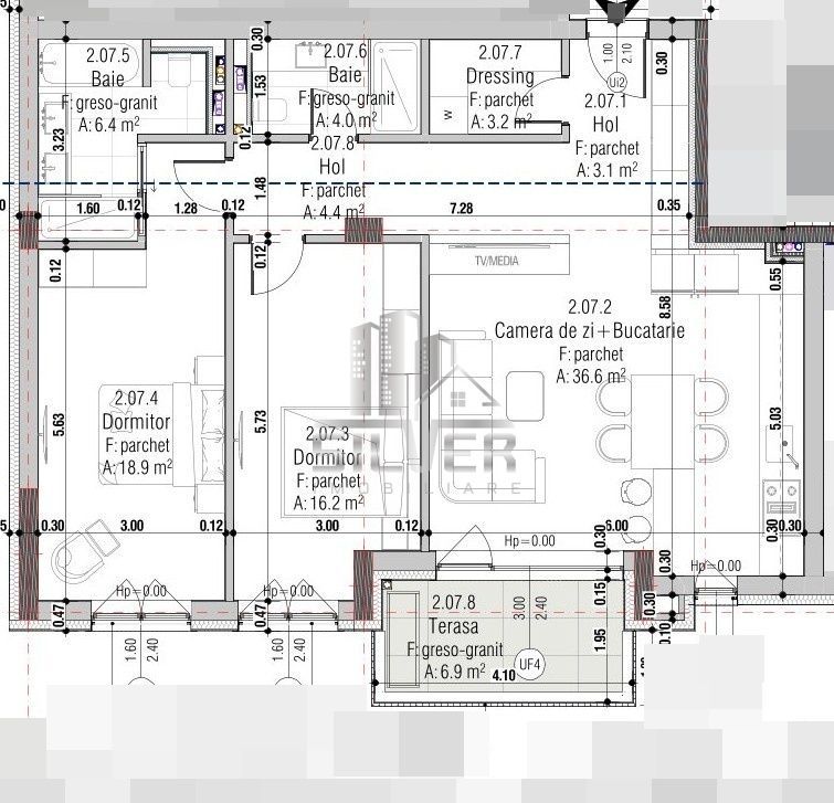
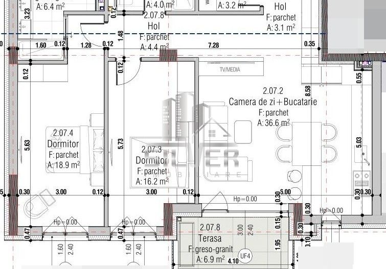
Apartamentul este pozitionat la etaj 2 intr-un imobil dispus, S+P+5E+ER cu suprafata utila de 92.8 mp + 6.9 mp balcon avand urmatoarea compartimentare:

- camera de zi impreuna cu bucataria;

- 2 dormitoare;

- 2 bai;

- dressing/spatiu depozitare;

- balcon cu acces din camera de zi;

- 2 holuri;

Se vinde la stadiul de semifinisat, avand urmatoarele caracteristici : zidarie din caramida, fundatii,stalpi si plansee din beton armat, peretii gletuiti cu 2 straturi de glet, termosistem cu polistiren de 20 cm, încălzire în pardoseală, centrală termică pe imobil de ultima generatie, tamplarie REHAU 3 sticle/profil 7 camere/feronerie Winkhaus, instalații sanitare si electrice trase pe poziție, cadre vase WC montate, sape de egalizare.

Recomandam aceasta proprietate tuturor celor care doresc sa locuiasca intr-o zona exclusivista, intr-un imobil de inalta calitate, cu acces facil spre centru si spre toate punctele de interes cotidian, avand absolut orice facilitate la mai putin de 10 minute de imobil.

Locul de parcare subteran se achizitioneaza separat si este 20.000 euro + TVA.

PRETUL MENTIONAT IN ANUNT NU CONTINE TVA-UL DE 21%.

Predare imobil sept.-oct 2025, extrase Cf dec.2025.

Va asteptam cu drag pentru programarea unei vizionarii sau mai multe detalii despre aceasta proprietate.

Citește mai mult

  • Tip apartament
    Apartament
  • Compartimentare
    Semidecomandat
  • Număr camere
    3
  • Dormitoare
    2
  • Număr bucătării
    1
  • Număr băi
    2
  • Etaj
    2
  • Suprafață utilă
    92.8 mp
  • Suprafață construită
    112 mp
  • Suprafață totală
    99.7 mp
  • Disponibilitate
    10.2025
  • Orientare
    Vest
  • Confort
    1
  • Stare interior
    Semifinisat
  • Anul finisării
    2025
  • Număr balcoane
    1
  • Imobil
    Bloc de apart.
  • Stadiu construcție
    În construcție
  • An construcție
    2025
  • Construcție nouă
    Da
  • La revânzare
    Da
  • Tip construcție
    Cărămidă
  • Număr etaje clădire
    5
  • Număr etaje retrase
    1
  • Număr subsoluri
    1

Facilități

Apă
Bucătărie deschisă
Canalizare
CATV
Centrală imobil
Contor căldură
Contor electric
Curent
Debara
Ferestre care se deschid
Ferestre PVC
Garaj subteran
Gaz
Geamuri termopan
Geamuri tripan
Glet
Iluminat stradal
Interfon
Internet
Izolație exterioară
Lift
Mijloace de transport în comun
Nemobilat
Șapă
Senzor de fum
Străzi asfaltate
Telefon
Ușă intrare metal
Dorel Lacatus - Silver Imobiliare
Dorel Lacatus
Senior Broker

0770221133


Solicită chiar acum o vizionare
Telefon
Sună acum Solicită vizionare
Necesare:

Site-ul nu poate funcționa corect fără aceste cookie-uri. Vezi cookie-urile

Statistică:

Strângem statistici anonime despre voi, vizitatorii unici, pentru a vă îmbunătăți experiența dumneavoastră. Vezi cookie-urile

Marketing:

Pentru a ne promova mai eficient serviciile noastre, folosim cookies pentru a vă identifica și a vă oferi proprietăți și servicii personalizate. Vezi cookie-urile

Acest site folosește cookies, află detalii. Alege ce tipuri de cookies dorești să permitem: