ID CP2883976

Apartament 3 camere/76mp/Terasa 73mp/garaj.

ID CP2883976

195,000 € (negociabil)

Apartament cu 3 camere de vânzare
Parcul Poligon, Floresti
75.6 mp
2021

Silver Imobiliare ofera spre vanzare apartament cu 3 camere situat in Floresti, zona Strazii Sub Cetate la etaj 4 intr-un imobil dispus, D+P+4E prevazut cu Lift tip Kleemann la 5 minute de Baza Sportiva si Parcul Poligon.

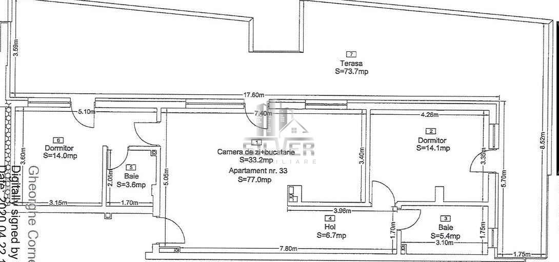
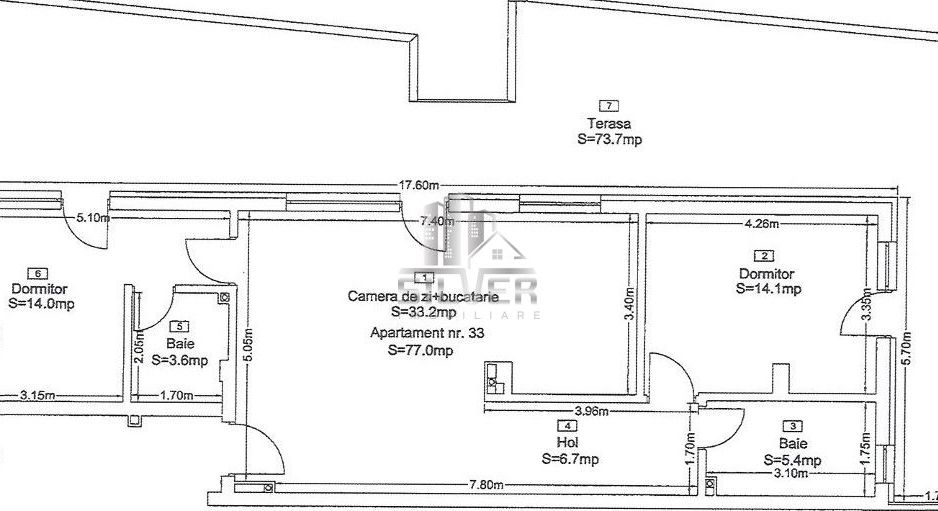
Apartamentul este orientat sud-est, cu suprafata utila de 75.6 mp+terasa de 73 mp, fiind compartimentat astfel:

- camera de zi spatioasa impreuna cu bucataria;

- 2 dormitoare (1 dormitor beneficiaza de baie proprie)

- 2 bai (1 baie este prevazuta cu geam)

- terasa cu panorama deosebita cu acces din fiecare camera.

La nivel de constructie, finisaje si inbunatatiri apartamentul beneficiaza de finisaje si electrocasnice de calitate superioara, dupa cum urmeaza:

- imobil construit cu zidarie din caramida;

- termosistem cu polistiren de 10 cm;

- izolatie peste etaj cu vata bazaltica de 25 cm;

- geamuri termoizolante din Pvc cu 3 foi de sticla/5 camere;

- pereti interiori zugraviti cu vopsea lavabila;

- usi interioare tip Filomuro;

- pardosea cu parchet din stejar dublu stratificat;

- bai finisate cu microciment;

- feronerii premium ( grohe, hansgrohe, kludi, franke )

- mobillier bucatarie personalizat tip MDF vopsit;

- mobilier living MDF infoliat

- electrocasnice premium ( electrolux, bosch )

- 3 SISTEME DE VENTILATIE MELTEM M-WRG-II +GATEWAY ( controlabil prin aplicatie )

- aparat de aer conditionat DAIKIN Stylish 18k BTU;

- masina de spalat rufe/uscator rufe BOSCH;

- panou electric imbunatatit

- sistem de incalzire in pardosea cu centrala termica proprie in condensare tip Saunier Duval;

SE VINDE COMPLET MOBILAT SI UTILAT, INCLUSIV TV.

PARCAREA SUBTERANA NU ESTE INCLUSA IN PRETUL LISTAT, SE POATE ACHIZITIONA CONTRACOST LA PRETUL DE 8.000 Euro.

Pentru alte detalii sau programarea unei vizionari, contactati-ne cu incredere!

Citește mai mult

  • Tip apartament
    Apartament
  • Compartimentare
    Semidecomandat
  • Număr camere
    3
  • Dormitoare
    2
  • Număr bucătării
    1
  • Număr băi
    2
  • Geam la baie
    Da
  • Etaj
    4
  • Suprafață utilă
    75.6 mp
  • Suprafață construită
    91 mp
  • Suprafață totală
    148.6 mp
  • Suprafață terasă
    73 mp
  • Disponibilitate
    Imediat
  • Orientare
    Sud-Est
  • Confort
    1
  • Stare interior
    Finisat modern
  • Anul finisării
    2022
  • Număr garaje
    1
  • Imobil
    Bloc de apart.
  • Stadiu construcție
    Finalizată
  • An construcție
    2021
  • Construcție nouă
    Da
  • Tip construcție
    Cărămidă
  • Număr etaje clădire
    4
  • Are demisol
    Da
  • Cadastru
    Există
  • Intabulare
    Există
  • Mod de dobândire
    Contract
  • Certificat Energetic
    Există
  • Clasă Energetică
    B

Facilități

Acoperiș
Aer condiționat
Apă
Apometre
Aragaz
Bucătărie deschisă
Bucătărie mobilată
Bucătărie utilată
Cabină de duș
Cadă
Canalizare
CATV
Centrală proprie
Contor electric
Contor gaz
Dressing
Facilități sportive
Ferestre care se deschid
Ferestre PVC
Frigider
Garaj subteran
Gaz
Geamuri termopan
Geamuri tripan
Încălzire prin pardoseală
Interfon
Internet
Izolație exterioară
Jacuzzi
Lift
Mașină de spălat rufe
Mașină de spălat vase
Mobilat complet
Parchet
Spații agrement
Străzi asfaltate
Supraveghere video
Tapet
Telecomandă poartă garaj
TV
Ușă intrare metal
Uși interior MDF
Vedere panoramică
Vopsea lavabilă
Dorel Lacatus - Silver Imobiliare
Dorel Lacatus
Senior Broker

0770221133


Solicită chiar acum o vizionare
Telefon
Sună acum Solicită vizionare
Necesare:

Site-ul nu poate funcționa corect fără aceste cookie-uri. Vezi cookie-urile

Statistică:

Strângem statistici anonime despre voi, vizitatorii unici, pentru a vă îmbunătăți experiența dumneavoastră. Vezi cookie-urile

Marketing:

Pentru a ne promova mai eficient serviciile noastre, folosim cookies pentru a vă identifica și a vă oferi proprietăți și servicii personalizate. Vezi cookie-urile

Acest site folosește cookies, află detalii. Alege ce tipuri de cookies dorești să permitem: