ID CP2097323

Apartament cu 3 camere/terasa 24 mp/boxa/finisaje incluse/PRET REDUS!

ID CP2097323

120,000 € TVA inclus

Apartament cu 3 camere de vânzare
Terra, Floresti
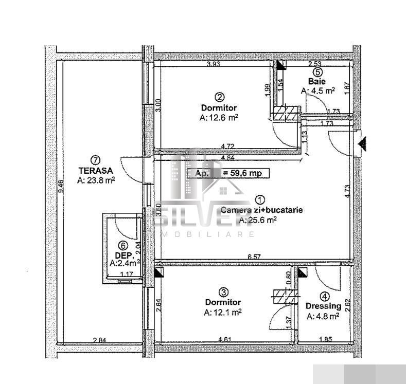
59.6 mp
2024

Va oferim spre vanzare apartament cu 3 camere recent finisat, situat in Floresti in zona foarte aerisita si linistita la etaj 3 intr-un imobil nou dispus, S+P+3E.

Apartamentul detine 59.6 mp utili+ terasa de 24 mp+boxa de 2,4 mp cu acces din interiorul terasei fiind compartimentat astfel:

- camera de zi impreuna cu bucataria;

- 2 dormitoare;

- dressing;

- baie;

- terasa de 24 mp cu acces din fiecare camera;

- boxa/spatiu de 2,4 mpde depozitare;

- hol acces;

La nivel de constructie si finisaje imobilul se va preda dupa cum urmeaza:

- fundatii, stalpi si plansee din beton armat;

- zidarie din caramida de 25 cm;

- termosistem cu polistiren de 10 cm/eps 80;

- geamuri termoizolante din Pvc tip Gealan;

- pereti interiori zugraviti cu vopsea lavabila;

- pardosea cu gresie si parchet laminat;

- usi interioare din Mdf tip Porta Doors;

- baie echipata complet;

- aparataje electrice;

- plinte din Mdf;

- mascare teava gaz cu gips-carton;

- usa la intrare metalica antiefractie cu 6 puncte de inchidere;

- sistem de incalzire cu centrala termica proprie in condensare si calorifere;

La nivel de parcari imobilul detine parcari subterane la pretul de 7.500 Euro.

PRETURILE MENTIONATE IN ANUNT CONTIN TVA-UL DE 21%.

IMOBILUL DETINE EXTRASE CF.

Pentru alte detalii sau programarea unei vizionari contacati-ne cu incredere!

Citește mai mult

  • Tip apartament
    Apartament
  • Compartimentare
    Semidecomandat
  • Număr camere
    3
  • Dormitoare
    2
  • Număr bucătării
    1
  • Număr băi
    1
  • Etaj
    3
  • Suprafață utilă
    59.6 mp
  • Suprafață construită
    72 mp
  • Suprafață totală
    85.8 mp
  • Suprafață terasă
    23.8 mp
  • Disponibilitate
    Imediat
  • Orientare
    Vest
  • Confort
    1
  • Stare interior
    Finisat modern
  • Anul finisării
    2024
  • Număr terase
    1
  • Imobil
    Bloc de apart.
  • Stadiu construcție
    Finalizată
  • An construcție
    2024
  • Construcție nouă
    Da
  • Tip construcție
    Cărămidă
  • Număr etaje clădire
    3
  • Număr subsoluri
    1

Facilități

Apă
Apometre
Bucătărie deschisă
Cabină de duș
Cadă
Calorifere
Canalizare
CATV
Centrală proprie
Contor electric
Contor gaz
Curent
Debara
Dressing
Ferestre care se deschid
Ferestre PVC
Garaj subteran
Gaz
Geamuri termopan
Gresie
Iluminat stradal
Interfon
Internet
Izolație exterioară
Mijloace de transport în comun
Nemobilat
Parchet laminat
Străzi asfaltate
Ușă intrare metal
Uși interior MDF
Vedere panoramică
Vopsea lavabilă
Dorel Lacatus - Silver Imobiliare
Dorel Lacatus
Senior Broker

0770221133


Solicită chiar acum o vizionare
Telefon
Sună acum Solicită vizionare
Necesare:

Site-ul nu poate funcționa corect fără aceste cookie-uri. Vezi cookie-urile

Statistică:

Strângem statistici anonime despre voi, vizitatorii unici, pentru a vă îmbunătăți experiența dumneavoastră. Vezi cookie-urile

Marketing:

Pentru a ne promova mai eficient serviciile noastre, folosim cookies pentru a vă identifica și a vă oferi proprietăți și servicii personalizate. Vezi cookie-urile

Acest site folosește cookies, află detalii. Alege ce tipuri de cookies dorești să permitem: