ID CP2494194

Apartament cu 3 camere/59 mp/Terasa 26mp/imobil NZEB.

ID CP2494194

103,000 € (negociabil) TVA inclus

Apartament cu 3 camere de vânzare
Terra, Floresti
59 mp
2025

Va oferim spre vanzare apartamente cu 3 camere situate in Floresti , zona Terra disponibile momentan la etaj 1-2, intr-un imobil nou dispus, S+P+2E+ER respectand actualele norme de eficienta energetica NZEB, astfel toate apartamentele vor beneficia de Certificat Energetic Clasa A.

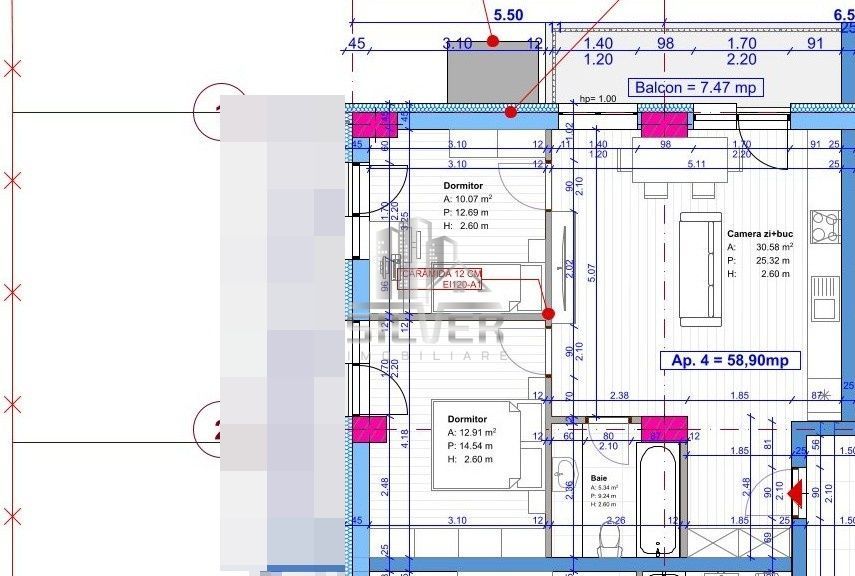
Apartamentele detin 59 mp utili+terasa de 26 mp cu urmatoarea compartimentare:

- camera de zi impreuna cu bucataria;

- 2 dormitoare;

- baie;

- terasa de 26 mp.

La nivel de constructie si finisaje imobilul se va preda , dupa cum urmeaza:

- fundatii, stalpi si plansee din beton armat;

- zidarie din caramida de 25 cm;

- termosistem cu polistiren de 15 cm/eps 80;

- geamuri termoizolante din Pvc cu 3 foi de sticla/5 camer3/profil Gealan;

- pereti interiori tencuiti+2 straturi de glet;

- instalatii electrice si sanitare trase pe pozitii;

- sapa de egalizare;

- usa la intrare metalica antiefractie cu 6 puncte de inchidere;

- sistem de incalzire cu centrala termica proprie in condensare si calorifere;

- sistem de Aer Conditionat instalat;

La nivel de parcari, imobilul detine parcari subterane la pretul de 7.200 Euro.

PRETURILE MENTIONATE IN ANUNT CONTIN TVA-UL DE 21% SI COSTUL TERASEI.

Predare imobil imediat, Extrase CF, 05-06.2026.

Pentru alte detalii sau programarea unei vizionari contacati-ne cu incredere!

Citește mai mult

  • Tip apartament
    Apartament
  • Compartimentare
    Semidecomandat
  • Număr camere
    3
  • Dormitoare
    2
  • Număr bucătării
    1
  • Număr băi
    1
  • Etaj
    1, 2
  • Suprafață utilă
    59 mp
  • Suprafață construită
    71 mp
  • Suprafață totală
    85 mp
  • Suprafață terasă
    26 mp
  • Disponibilitate
    Imediat
  • Orientare
    Est-Vest
  • Confort
    1
  • Stare interior
    Semifinisat
  • Anul finisării
    2025
  • Număr terase
    1
  • Imobil
    Bloc de apart.
  • Stadiu construcție
    Finalizată
  • An construcție
    2025
  • Construcție nouă
    Da
  • Tip construcție
    Cărămidă
  • Număr etaje clădire
    2
  • Număr etaje retrase
    1
  • Număr subsoluri
    1

Facilități

Aer condiționat
Apă
Apometre
Bucătărie deschisă
Calorifere
Canalizare
CATV
Centrală proprie
Contor electric
Contor gaz
Curent
Ferestre care se deschid
Ferestre PVC
Garaj subteran
Gaz
Geamuri termopan
Geamuri tripan
Glet
Iluminat stradal
Interfon
Internet
Izolație exterioară
Mijloace de transport în comun
Nemobilat
Parcare deschisă
Șapă
Străzi asfaltate
Telecomandă poartă garaj
Ușă intrare metal
Dorel Lacatus - Silver Imobiliare
Dorel Lacatus
Senior Broker

0770221133


Solicită chiar acum o vizionare
Telefon
Sună acum Solicită vizionare
Necesare:

Site-ul nu poate funcționa corect fără aceste cookie-uri. Vezi cookie-urile

Statistică:

Strângem statistici anonime despre voi, vizitatorii unici, pentru a vă îmbunătăți experiența dumneavoastră. Vezi cookie-urile

Marketing:

Pentru a ne promova mai eficient serviciile noastre, folosim cookies pentru a vă identifica și a vă oferi proprietăți și servicii personalizate. Vezi cookie-urile

Acest site folosește cookies, află detalii. Alege ce tipuri de cookies dorești să permitem: