ID CP2336260

Apartament cu 3 camere/90 mp/parcare/View spectaculos.

ID CP2336260

220,000 € (negociabil)

Apartament cu 3 camere de vânzare
Vivo, Floresti
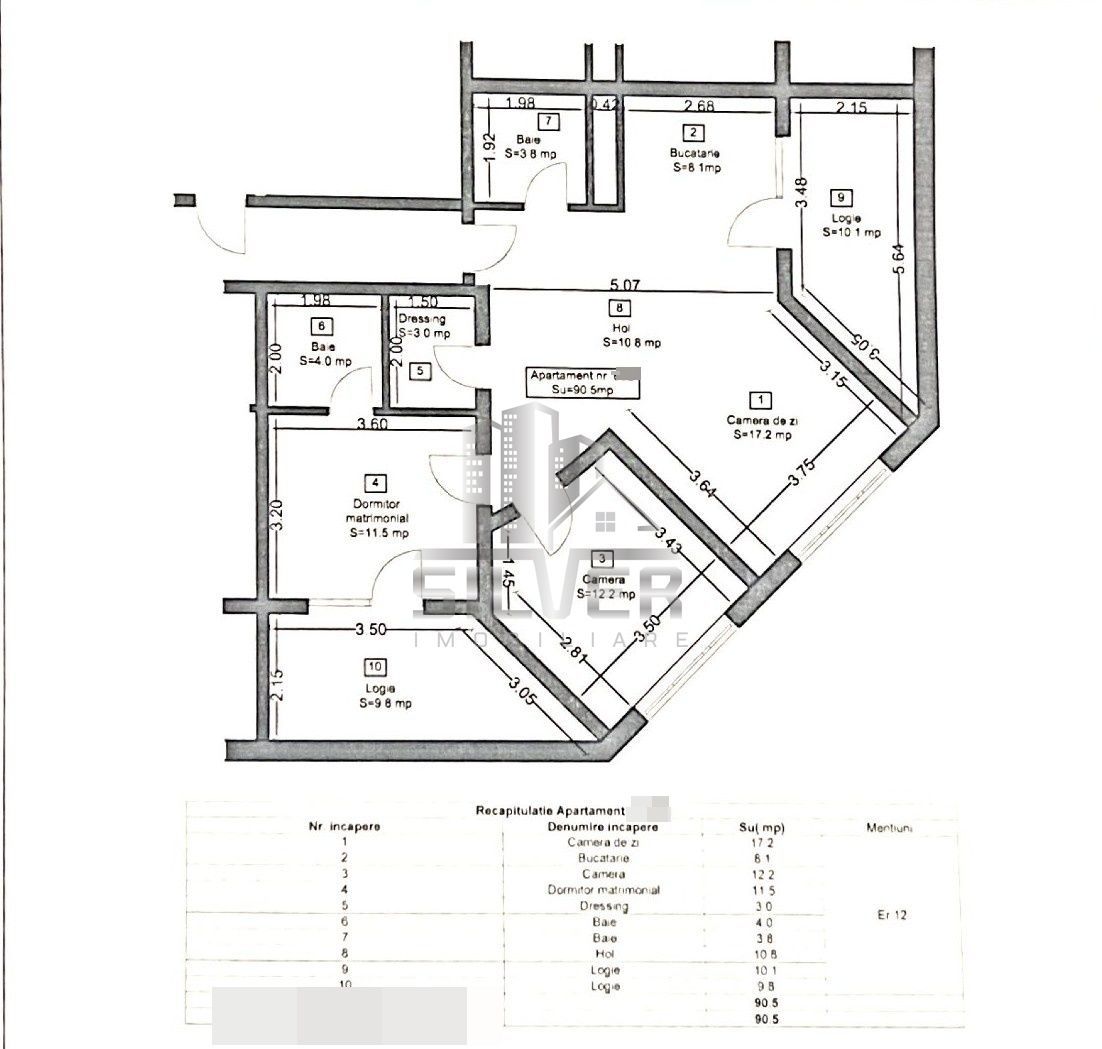
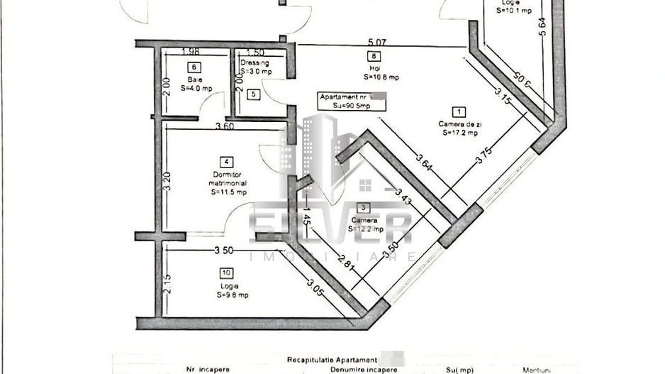
90.5 mp
2020

Silver Imobiliare ofera spre vanzare un apartament cu 3 camere situat in zona reprezentantei Bmw Floresti la etaj 12 intr-un imobil dispus pe 12 niveluri prevazut cu 2 lifturi avand acces facil spre toate punctele de interes.

Apartamentul are suprafata utila de 90.5 mp cu ambele logii incluse, fiind compartimentat astfel:

- camera de zi impreuna cu bucataria;

- 2 dormitoare ( 1 dormitor este prevazut cu baie proprie si logie/terasa;

- 2 bai;

- dressing;

- 2 logii;

- hol;

Apartamentul se vinde complet finisat, conform fotografiilor iar confortul termic este asigurat de centrala termica pe gaz, caldura fiind distribuita prin pardosea.

In pretul listat se ofera 1 PARCARE subterana cu CF individual.

Pentru alte detalii sau programarea unei vizionari contactati-ne cu incredere!

Citește mai mult

  • Tip apartament
    Apartament
  • Compartimentare
    Semidecomandat
  • Număr camere
    3
  • Dormitoare
    2
  • Număr bucătării
    1
  • Număr băi
    2
  • Etaj
    12
  • Suprafață utilă
    90.5 mp
  • Suprafață construită
    111 mp
  • Suprafață totală
    90.5 mp
  • Suprafață terasă
    20 mp
  • Disponibilitate
    Imediat
  • Orientare
    Sud-Est
  • Confort
    1
  • Stare interior
    Finisat modern
  • Anul finisării
    2024
  • Număr terase
    2
  • Imobil
    Bloc de apart.
  • Stadiu construcție
    Finalizată
  • An construcție
    2020
  • Construcție nouă
    Da
  • La revânzare
    Da
  • Tip construcție
    Cărămidă
  • Număr etaje clădire
    12
  • Număr subsoluri
    1

Facilități

Apă
Apometre
Bucătărie deschisă
Cabină de duș
Cadă
Canalizare
CATV
Centrală proprie
Contor electric
Contor gaz
Curent
Ferestre care se deschid
Garaj subteran
Gaz
Geamuri termopan
Geamuri tripan
Gresie
Iluminat stradal
Încălzire prin pardoseală
Interfon
Internet
Izolație exterioară
Lift
Mijloace de transport în comun
Nemobilat
Străzi asfaltate
Supraveghere video
Telecomandă poartă garaj
Uși interior MDF
Uși interior sticlă
Vedere panoramică
Vopsea lavabilă
Dorel Lacatus - Silver Imobiliare
Dorel Lacatus
Senior Broker

0770221133


Solicită chiar acum o vizionare
Telefon
Sună acum Solicită vizionare
Necesare:

Site-ul nu poate funcționa corect fără aceste cookie-uri. Vezi cookie-urile

Statistică:

Strângem statistici anonime despre voi, vizitatorii unici, pentru a vă îmbunătăți experiența dumneavoastră. Vezi cookie-urile

Marketing:

Pentru a ne promova mai eficient serviciile noastre, folosim cookies pentru a vă identifica și a vă oferi proprietăți și servicii personalizate. Vezi cookie-urile

Acest site folosește cookies, află detalii. Alege ce tipuri de cookies dorești să permitem: