ID CP2821626

Apartament cu 3 camere/terasa 17.2mp/zona Frunzisului/CF.

ID CP2821626

207,000 € (negociabil) + 21% TVA

Apartament cu 3 camere de vânzare
Zorilor, Cluj-Napoca
58.2 mp
2022

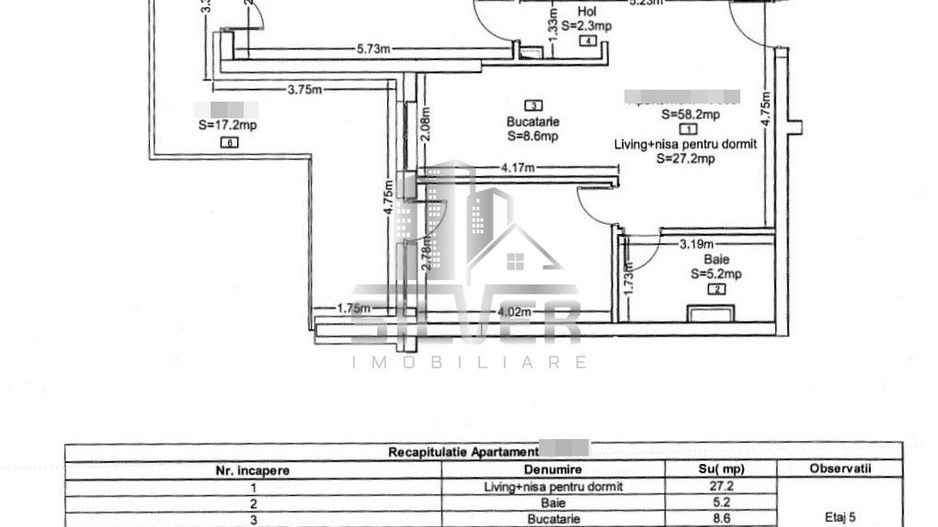
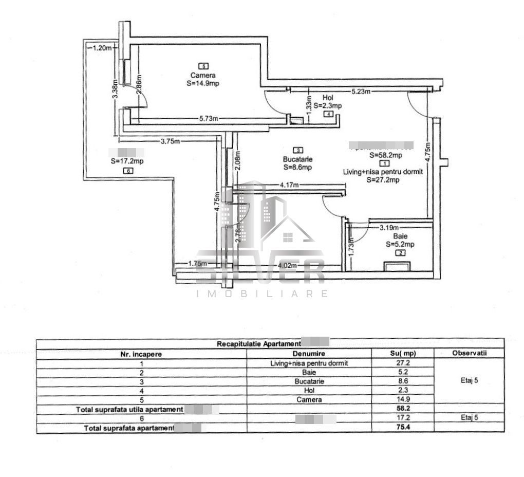
Silver Imobiliare ofera spre vanzare apartament cu 3 camere situat in zona strazii Frunzisului la etaj 5 intr-un imobil nou dispus -2+P+14E+ER cu acces facil spre toate punctele de interes.

Apartamentul are suprafata utila de 58.2 mp+terasa de 17.2 mp , fiind compartimenat astfel:

- 2 dormitoare;

- living;

- bucatarie inchisa;

- baie;

- hol;

- terasa de 17.2mp.

Apartamentul se vinde complet finisat, conform fotografiilor, iar confortul termic este asigurat de centrala termica proprie in condensare si calorifere din otel.

La cerere se poate achizitiona parcare supraterana la pretul de 15.000 Euro.

PRETURILE MENTIONATE IN ANUNT NU CONTIN TVA.

Pentru alte detalii sau programarea unei vizionari, apelati cu incredere!

Citește mai mult

  • Tip apartament
    Apartament
  • Compartimentare
    Semidecomandat
  • Număr camere
    3
  • Dormitoare
    2
  • Număr bucătării
    1
  • Număr băi
    1
  • Etaj
    5
  • Suprafață utilă
    58.2 mp
  • Suprafață construită
    70 mp
  • Suprafață totală
    75.4 mp
  • Suprafață terasă
    17.2 mp
  • Disponibilitate
    Imediat
  • Orientare
    Est
  • Confort
    1
  • Stare interior
    Finisat modern
  • Anul finisării
    2025
  • Număr terase
    1
  • Număr locuri parcare
    1
  • Imobil
    Bloc de apart.
  • Stadiu construcție
    Finalizată
  • An construcție
    2022
  • Construcție nouă
    Da
  • Tip construcție
    Cărămidă
  • Număr etaje clădire
    14
  • Număr etaje retrase
    1
  • Număr subsoluri
    2

Facilități

Apă
Apometre
Bucătărie închisă
Cadă
Calorifere
Canalizare
CATV
Centrală proprie
Contor electric
Contor gaz
Curent
Ferestre aluminiu
Ferestre care se deschid
Gaz
Geamuri termopan
Geamuri tripan
Gresie
Iluminat stradal
Internet
Irigații
Izolație exterioară
Lift
Loc de joacă copii
Mijloace de transport în comun
Nemobilat
Parcare deschisă
Parchet laminat
Senzor de fum
Spații agrement
Străzi asfaltate
Telefon
Ușă intrare lemn
Uși interior MDF
Vedere panoramică
Videointerfon
Vopsea lavabilă
Dorel Lacatus - Silver Imobiliare
Dorel Lacatus
Senior Broker

0770221133


Solicită chiar acum o vizionare
Telefon
Sună acum Solicită vizionare
Necesare:

Site-ul nu poate funcționa corect fără aceste cookie-uri. Vezi cookie-urile

Statistică:

Strângem statistici anonime despre voi, vizitatorii unici, pentru a vă îmbunătăți experiența dumneavoastră. Vezi cookie-urile

Marketing:

Pentru a ne promova mai eficient serviciile noastre, folosim cookies pentru a vă identifica și a vă oferi proprietăți și servicii personalizate. Vezi cookie-urile

Acest site folosește cookies, află detalii. Alege ce tipuri de cookies dorești să permitem: