ID CP2850564

Case individuale cu teren de 420 mp!

ID CP2850564

199,900 € (negociabil)

Casă / Vilă cu 4 camere de vânzare
Luna de Sus
125 mp
2025

Silver Imobiliare ofera spre vanzare case individuale cu teren de 420 mp, deschidere 19m in Luna De Sus, avand acces facil spre toate punctele de interes.

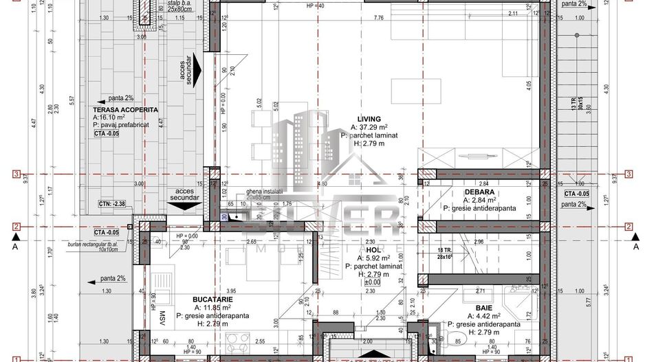
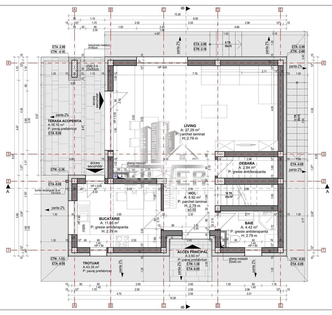
Casele sunt dispuse pe 2 niveluri, P+E cu suprafata utila de 125 mp+terasa circulabila de 82 mp, fiind compartimentate astfel:

Parter:

- living spatios+dining;

- bucatarie inchisa;

- baie;

- debara;

- terasa;

- hol+casa scarilor.

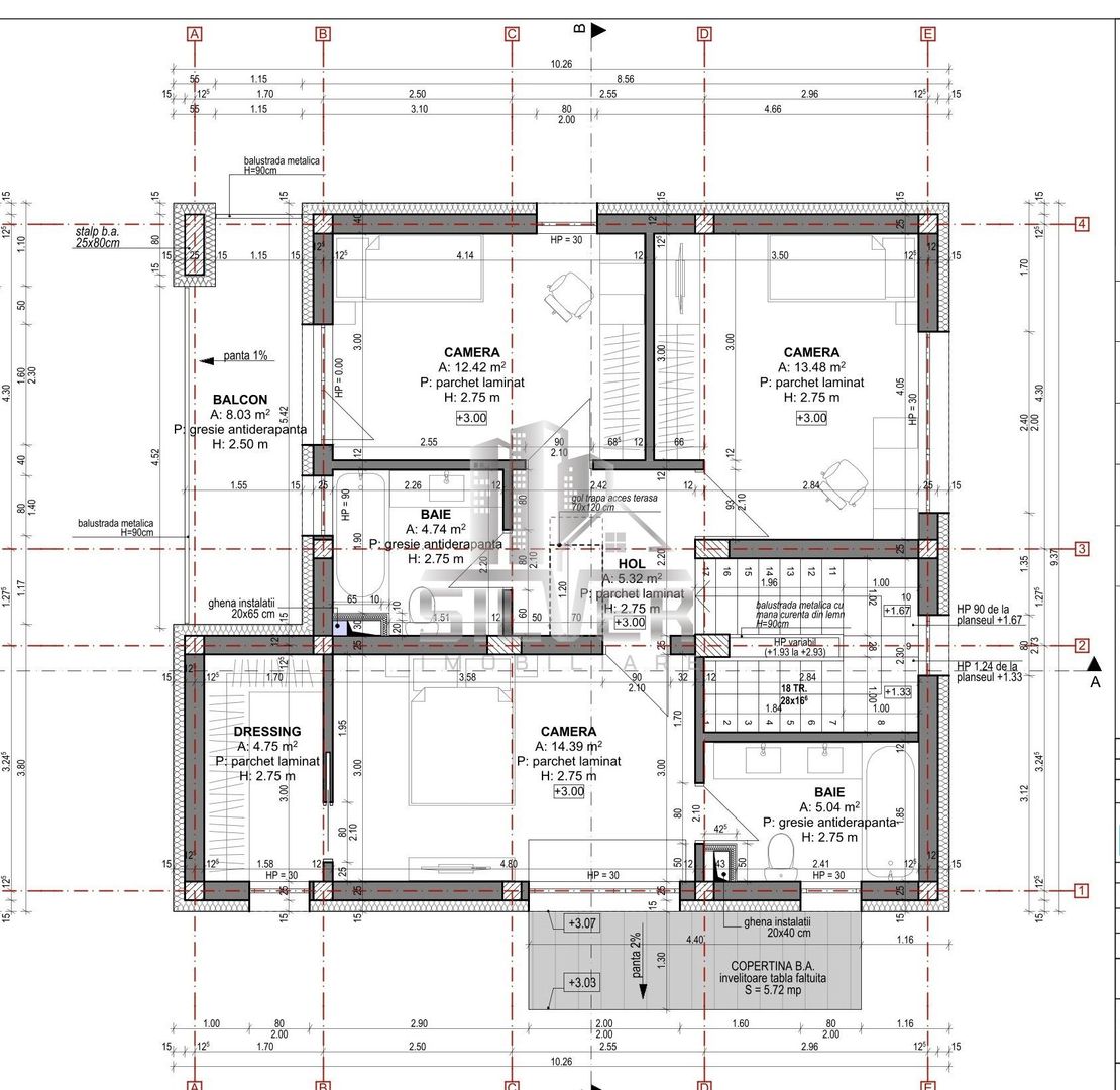
Etaj:

- dormitor principal prevazut cu dressing si baie proprie;

- dormitor 2 prevazut cu balcon;

- dormitor 3;

- baie ptr. deservire dormitoare 2-3;

- hol+casa scarilor.

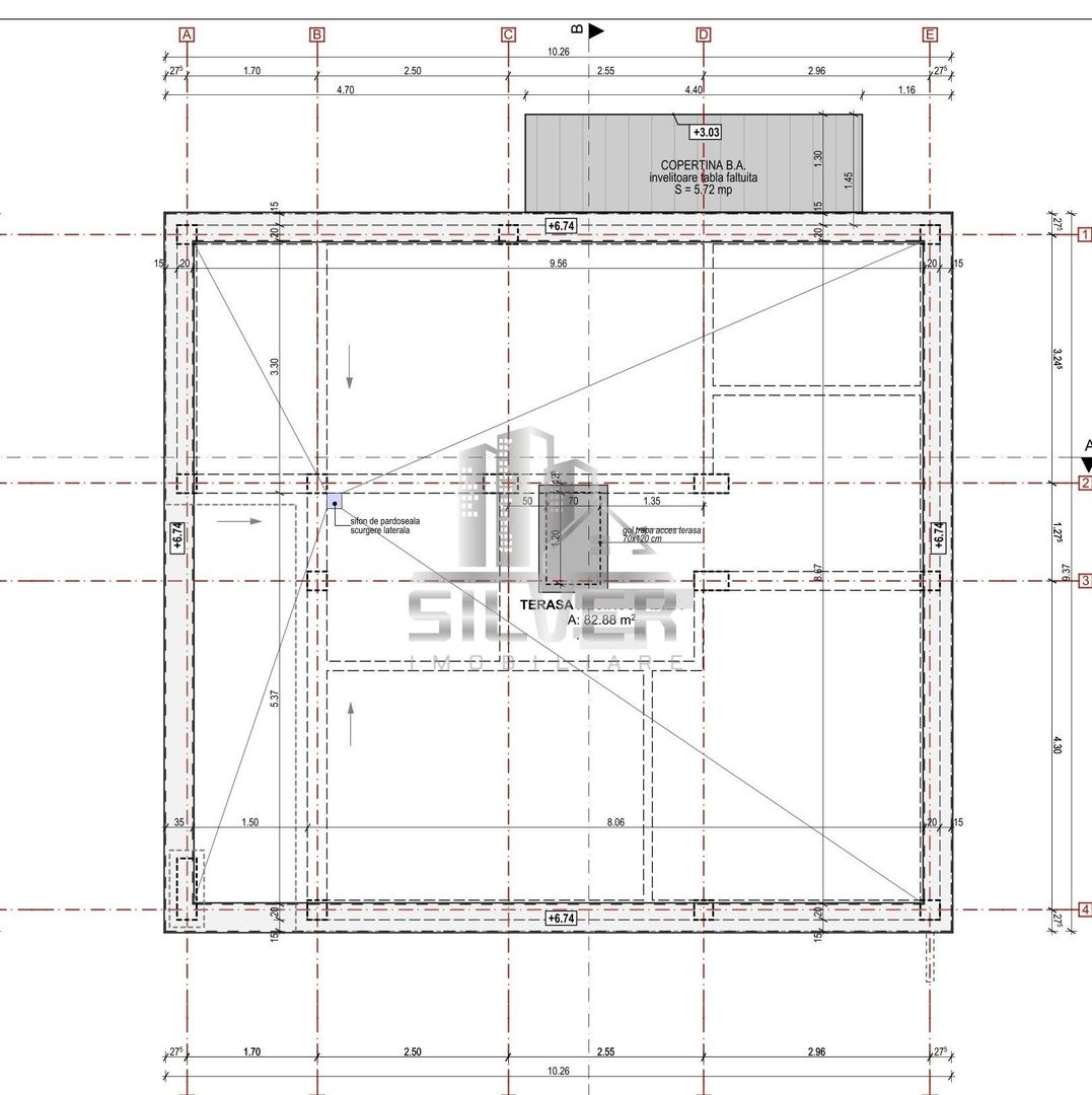
TERASA CIRCULABILA CU SUPRAFATA DE 82 MP.

La nivel de constructie si finisaje casele se vand la stadiul de semifinisat, dupa cum urmeaza:

- fundatii stalpi si plansee din beton armat;

- zidarie din caramida de 25 cm;

- termosistem cu polistiren de 10cm/eps 80+tencuiala decorativa;

- geamuri si usi principale termoizolante din Pvc cu 3 foi de sticla/5 camere;

- pereti interiori tencuiti+1 strat de glet;

- acoperis tip terasa placat cu polistiren de 20 cm, sapa si hidroizolatie cu membrana Sika;

- instalatiile sanitare si electrice trase pe pozitii;

- sapa de egalizare;

- curtea amenajata si ingradita;

- sistem de incalzire la ambele niveluri in pardoseala cu centrala termica pe gaz.

CASELE VOR FI BRANSATE LA APA, GAZ, CURENT, CANALIZARE.

VANZAREA SE FACE DE PE PERSOANE FIZICE, NEFIIND AFECTATE DE TVA.

PREDARE 02.2026, EXTRASE CF. 05.2026.

Pentru alte detalii sau programarea unei vizionari apelati cu incredere!

Citește mai mult

  • Număr camere
    4
  • Dormitoare
    3
  • Număr bucătării
    1
  • Număr băi
    3
  • Geam la baie
    Da
  • Număr balcoane
    1
  • Număr terase
    2
  • Număr locuri parcare
    2
  • Disponibilitate
    02.2026
  • Tip casă
    Individual
  • Stare interior
    Semifinisat
  • Anul finisării
    2025
  • Suprafață utilă
    125 mp
  • Suprafață construită
    160 mp
  • Suprafață construită la sol (Amprentă)
    75.0 mp
  • Suprafață teren
    420 mp
  • Suprafață curte
    345 mp
  • Suprafață curte liberă
    345 mp
  • Suprafață terasă
    98 mp
  • Deschidere
    19 m
  • Acoperiș
    Terasă
  • Stadiu construcție
    În construcție
  • An construcție
    2025
  • Construcție nouă
    Da
  • Tip construcție
    Cărămidă
  • Număr etaje clădire
    1
  • Număr etaje retrase
    1

Facilități

Apă
Apometre
Bucătărie închisă
Canalizare
CATV
Centrală proprie
Contor electric
Contor gaz
Curent
Ferestre care se deschid
Ferestre PVC
Gaz
Geamuri termopan
Geamuri tripan
Glet
Grădină proprie
Gresie
Iluminat stradal
Încălzire prin pardoseală
Internet
Izolație exterioară
Mijloace de transport în comun
Nemobilat
Parcare deschisă
Șapă
Străzi asfaltate
Telefon
Ușă intrare PVC
Vedere panoramică
Dorel Lacatus - Silver Imobiliare
Dorel Lacatus
Senior Broker

0770221133


Solicită chiar acum o vizionare
Telefon
Sună acum Solicită vizionare
Necesare:

Site-ul nu poate funcționa corect fără aceste cookie-uri. Vezi cookie-urile

Statistică:

Strângem statistici anonime despre voi, vizitatorii unici, pentru a vă îmbunătăți experiența dumneavoastră. Vezi cookie-urile

Marketing:

Pentru a ne promova mai eficient serviciile noastre, folosim cookies pentru a vă identifica și a vă oferi proprietăți și servicii personalizate. Vezi cookie-urile

Acest site folosește cookies, află detalii. Alege ce tipuri de cookies dorești să permitem: