ID CP2049594

Casa tip Duplex cu demisol si terasa/CF.

ID CP2049594

325,000 € (negociabil)

Casă / Vilă cu 4 camere de vânzare
Vivo, Floresti
174.23 mp
2024

Va oferim spre vanzare o casa de tip duplex, in Floresti, zona centurii de Sud Floresti-Cluj.

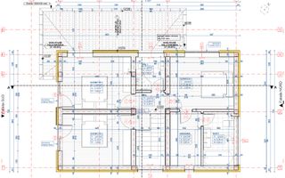
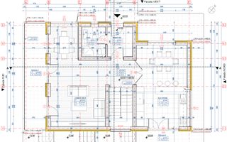
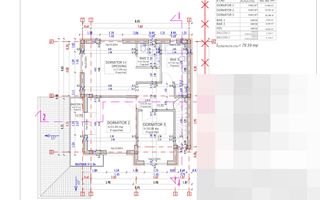
Casa are in proprietate un teren de 268 mp si e dispusa pe 3 niveluri, cu o suprafata utila de 175mp, compartimentata astfel:

Demisol: openspace in suprafata de 54,84mp

Parter: Bucatarie/birou, living, baie, hol, casa scarii, + terasa de 17.25mp

Etaj: 1 dormitor matrimonial cu dressing si baie proprie, 2 dormitoare, 1 baie, hol, casa scarii, 1 balcon comun de 9.22mp

Casa se vinde la stadiul de partial finisat, avand peretii gletuiti, slefuiti si zugraviti in vopsea lavabila alba, centrala termica proprie cu sistem de incalzire in pardoseala pe toate cele 3 niveluri, peretii gletuiti, sapa de egalizare, instalatii termice si sanitare, instalatii electrice pe pozitie, tamplarie PVC REHAU cu profil de 3 panouri de sticla termo-reflexiva si protectie UV.

Constructia este edificata pe fundatie de beton armat cu zidarie de caramida, cu zid dublu intre unitati, acoperis de tip terasa cu hidroizolatie, termosistem 15cm, tencuiala decorativa si se preda cu exteriorul finalizat, curtea ingradita si amenajata, 2 locuri de parcare aranjate.

Recomandam aceasta proprietate tuturor celor care doresc sa locuiasca la casa intr-o zona accesibila, cu panorama asupra imprejurimilor si intr-un imobil calitativ.

Pentru mai multe detalii sau informatii ne puteti contacta cu incredere.

Citește mai mult

  • Număr camere
    4
  • Dormitoare
    3
  • Număr bucătării
    1
  • Număr băi
    3
  • Geam la baie
    Da
  • Număr balcoane
    1
  • Număr terase
    1
  • Număr locuri parcare
    2
  • Disponibilitate
    Imediat
  • Tip casă
    Duplex
  • Stare interior
    Semifinisat
  • Suprafață utilă
    174.23 mp
  • Suprafață construită
    220 mp
  • Suprafață construită la sol (Amprentă)
    60.0 mp
  • Suprafață teren
    268 mp
  • Suprafață curte
    208 mp
  • Suprafață curte liberă
    208 mp
  • Suprafață terasă
    26.47 mp
  • Deschidere
    10 m
  • Acoperiș
    Terasă
  • Stadiu construcție
    În construcție
  • An construcție
    2024
  • Construcție nouă
    Da
  • Tip construcție
    Cărămidă
  • Număr etaje clădire
    1
  • Număr subsoluri
    1
  • Are demisol
    Da
  • Cadastru
    Există
  • Intabulare
    Există
  • Mod de dobândire
    Autorizație de construire
  • Certificat Energetic
    Există

Facilități

Apă
Boxă la subsol
Bucătărie închisă
Canalizare
CATV
Centrală proprie
Contor căldură
Contor electric
Contor gaz
Curent
Ferestre care se deschid
Ferestre PVC
Gaz
Geamuri termopan
Geamuri tripan
Iluminat stradal
Încălzire prin pardoseală
Internet
Izolație exterioară
Magazie
Mijloace de transport în comun
Nemobilat
Parcare deschisă
Șapă
Străzi asfaltate
Telefon
Ușă intrare PVC
Vedere panoramică
Vopsea lavabilă
Dorel Lacatus - Silver Imobiliare
Dorel Lacatus
Senior Broker

0770221133


Solicită chiar acum o vizionare
Telefon
Sună acum Solicită vizionare
Necesare:

Site-ul nu poate funcționa corect fără aceste cookie-uri. Vezi cookie-urile

Statistică:

Strângem statistici anonime despre voi, vizitatorii unici, pentru a vă îmbunătăți experiența dumneavoastră. Vezi cookie-urile

Marketing:

Pentru a ne promova mai eficient serviciile noastre, folosim cookies pentru a vă identifica și a vă oferi proprietăți și servicii personalizate. Vezi cookie-urile

Acest site folosește cookies, află detalii. Alege ce tipuri de cookies dorești să permitem: