ID CP2756886

Case cuplate in zonacVivo cu panorama deosebita.

ID CP2756886

270,000 € (negociabil) + 21% TVA

Casă / Vilă cu 4 camere de vânzare
Vivo, Floresti
180 mp
2025

Silver Imobiliare ofera spre vanzare 4 case cuplate in curs de construire , situate in Floresti, zona strazii Razoare la 5 minute de Vivo Center cu acces facil spre Vivo Mall si Cluj-Napoca.

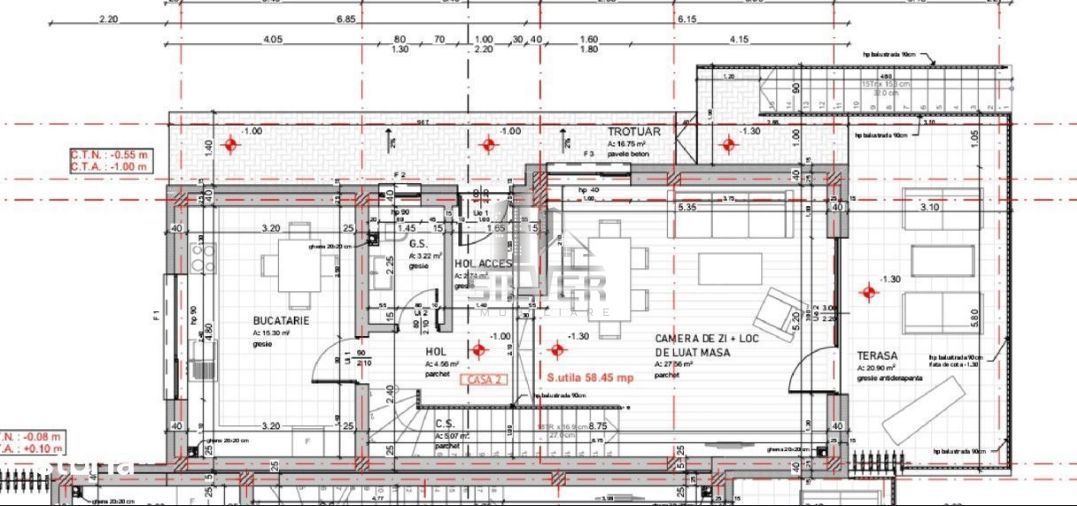
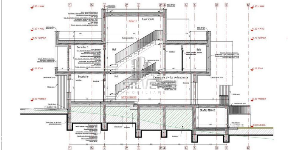
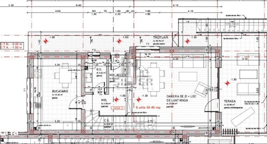
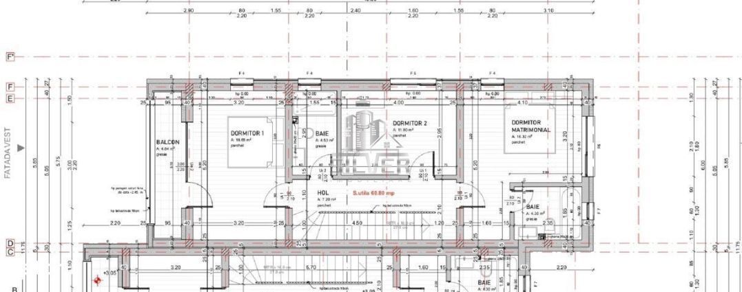
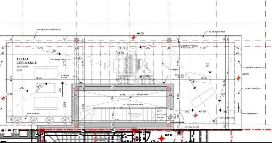
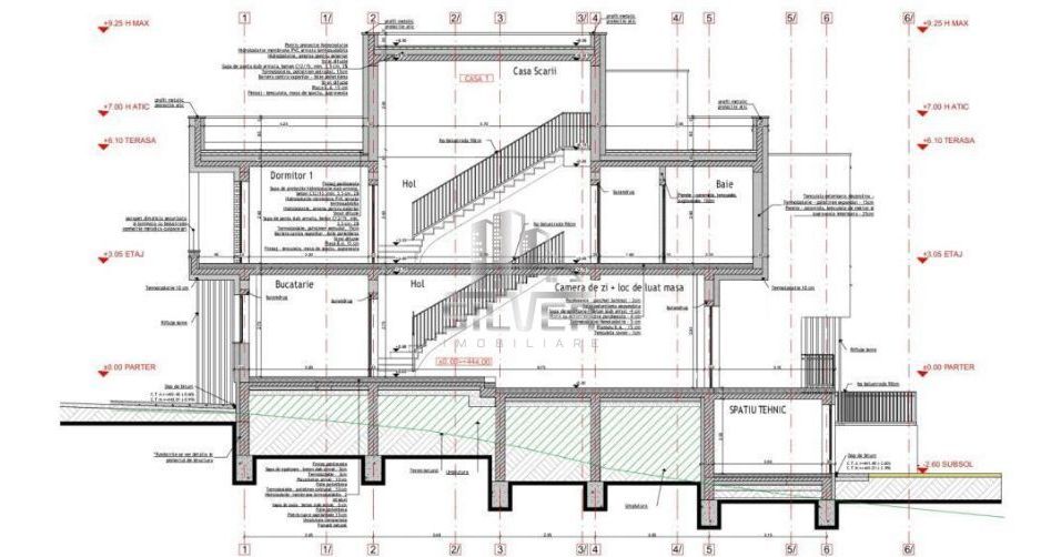
Casele se construiesc pe un teren de 1080 mp, respectiv 270 mp/casa locativa , dispuse pe 4 niveluri S+P+E+Terasa circulabila cu suprafata utila de 180 mp compartimentate astfel:

- Subsol

- spatiu tehnic+spatiu depozitare.

- Parter

- living+dining;

- bucatarie cu loc de luata masa;

- baie;

- terasa cu acces din living;

- hol acces;

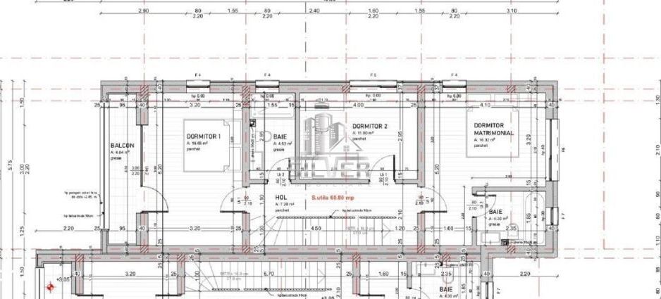
- Etaj

- dormitor 1 prevazut cu baie proprie si dressing;

- dormitor 2 prevazut cu acces la balcon;

- dormitor 3 ;

- baie ptr. dormitoarele 2-3;

- hol acces+casa scarilor.

La nivel de constructie casele se vor preda la stadiul de semifinisat la interior/finisat la exterior, cu materiale de buna calitate, dupa cum urmeaza:

- fundatii, stalpi si plansee din beton armat;

- hidroizolatii cu membrana bituminoasa si politiren extrudat;

- zidarii din caramida de 25 cm la exterior;

- fatade placate cu POLISTIREN DE 20 CM+tencuila si piatra decorativa;

- pereti interiori tencuiti+1 strat de glet;

- tamplarii cu 3 foi de sticla/5 camere/profil Salamander sau Rehau;

- instalatii sanitare si electricea trase pe pozitii;

- sape de egalizare;

- sistem de incalzire in pardosea cu centrala termica in condensare;

- curti amenajate si ingradite;

- racordare si contorizare la toate utilitatile necesare;

Predare imobile, 05.2026. Extrase CF. 08-09.2026

PRETUL MENTIONAT IN ANUNT ESTE PTR.ACHIZITIE CU AVANS DE MINIM 70%, FIIND PJ.NU CONTINE TVA.

Pentru alte detalii sau programare unei vizionari contactati-ne cu incredere!

Citește mai mult

  • Număr camere
    4
  • Dormitoare
    3
  • Număr bucătării
    1
  • Număr băi
    3
  • Geam la baie
    Da
  • Număr balcoane
    1
  • Număr terase
    2
  • Număr locuri parcare
    2
  • Disponibilitate
    Imediat
  • Tip casă
    Duplex
  • Stare interior
    Semifinisat
  • Anul finisării
    2025
  • Suprafață utilă
    180 mp
  • Suprafață construită
    240 mp
  • Suprafață construită la sol (Amprentă)
    80.0 mp
  • Suprafață teren
    270 mp
  • Suprafață curte
    190 mp
  • Suprafață curte liberă
    190 mp
  • Suprafață terasă
    80 mp
  • Deschidere
    13 m
  • Acoperiș
    Terasă
  • Stadiu construcție
    În construcție
  • An construcție
    2025
  • Construcție nouă
    Da
  • Tip construcție
    Cărămidă
  • Număr etaje clădire
    1
  • Număr etaje retrase
    1
  • Număr subsoluri
    1

Facilități

Apă
Apometre
Bucătărie închisă
Canalizare
CATV
Centrală proprie
Contor electric
Contor gaz
Curent
Ferestre care se deschid
Ferestre PVC
Gaz
Geamuri termopan
Geamuri tripan
Glet
Iluminat stradal
Încălzire prin pardoseală
Internet
Izolație exterioară
Mijloace de transport în comun
Nemobilat
Parcare deschisă
Șapă
Străzi asfaltate
Vedere panoramică
Vedere spre oraș
Dorel Lacatus - Silver Imobiliare
Dorel Lacatus
Senior Broker

0770221133


Solicită chiar acum o vizionare
Telefon
Sună acum Solicită vizionare
Necesare:

Site-ul nu poate funcționa corect fără aceste cookie-uri. Vezi cookie-urile

Statistică:

Strângem statistici anonime despre voi, vizitatorii unici, pentru a vă îmbunătăți experiența dumneavoastră. Vezi cookie-urile

Marketing:

Pentru a ne promova mai eficient serviciile noastre, folosim cookies pentru a vă identifica și a vă oferi proprietăți și servicii personalizate. Vezi cookie-urile

Acest site folosește cookies, află detalii. Alege ce tipuri de cookies dorești să permitem: