ID CP2557947

Casa Individuala cu 6 camere in cartier Andrei Muresanu, Cluj-Napoca

ID CP2557947

950,000 € (negociabil)

Casă / Vilă cu 6 camere de vânzare
Andrei Muresanu, Cluj-Napoca
331.46 mp
2001

Reședință de prestigiu în inima cartierului Andrei Mureșanu din Cluj-Napoca

Vă invităm să descoperiți o proprietate excepțională, situată într-unul dintre cele mai elitiste cartiere ale Clujului – Andrei Mureșanu, un loc cu un farmec aparte, unde liniștea, verdeața și discreția se îmbină armonios cu rafinamentul urban. Această casă individuală este mai mult decât o locuință – este o declarație de stil și eleganță, destinată celor care își doresc o viață la standarde înalte.

Detalii imobil:

Teren generos de 420 mp masurat, (399mp in acte) amenajat cu gazon perfect întreținut, plante ornamentale atent alese și un brad argintiu impunător, care conferă un aer nobil grădinii.

Suprafață utilă de 331.46 mp, desfășurată pe trei niveluri distincte, fiecare oferind o ambianță bine gândită, care îmbină funcționalitatea cu rafinamentul.

Compartimentare:

📍 Demisol – 55.56 mp:

Un spațiu intim și versatil, cu:

- Cameră spațioasă, ideală pentru oaspeți sau relaxare;

- Bucătărie închisă complet echipată;

- Baie cu duș;

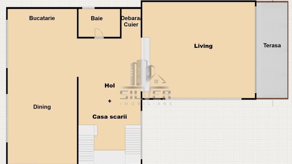
📍 Parter – 164.08 mp:

Un adevărat spațiu de zi grandios, care inspiră deschidere și lumină:

- Bucătărie open-space integrată cu zona de dining, perfectă pentru cine rafinate;

- Living spectaculos cu pereți vitrali ce lasă lumina naturală să inunde întreaga încăpere;

- Baie cu dus;

- Debara / cuier;

- Hol + hol acces;

- Terasă de 12 mp, cu acces direct în grădină și zona de barbeque – un colț de paradis pentru serile de vară și nu numai!

📍 Etaj:

Un etaj al confortului absolut:

- Hol spațios cu acces catre:

- 3 dormitoare spatioase;

- Dormitorul matrimonial somptuos, cu baie proprie dotată cu duș și cadă, precum și un walk-in dressing generos;

- Baie secundară cu cabină de duș și cadă cu jacuzzi;

📍 Pod:

Spațiu suplimentar de aproximativ 70 mp, perfect pentru depozitare, înălțime confortabilă pentru utilizare versatilă.

Detalii de construcție și dotări :

- Locuință NZEB, cu eficiență energetică certificată A+ ;

- Panouri fotovoltaice de 3 kW – independență energetică și sustenabilitate ;

- Construcție solidă pe fundație din beton armat, zidărie din cărămidă și BCA;

- Acoperiș din lemn cu țiglă ceramică, garanție 50 de ani;

- Încălzire eficientă prin 5 instalatii de aer condtionat si 2 centrale termice conectate in serie la sistemul de calorifere, izolație de calitate superioară;

Exteriorul de poveste oferă o curte amenajată cu o atenție meticuloasă la detalii:

- Zonă de lounge și dining exterior, cu cuptor de pizza din cărămidă șamotă și barbeque;

- Spațiul verde îngrijit, ideal pentru relaxare sau socializare;

Amplasare de excepție:

Situată pe o stradă privată, cu trafic redus, înconjurată de natură și vecini de calitate, această proprietate emană o atmosferă boemă și exclusivistă, oferind totodată acces facil către centrul orașului.

Această reședință este destinată celor care își doresc mai mult decât o casă – un stil de viață boem.

Dacă v-am starnit interesul cu această proprietate, vă invităm să ne contactati cu incredere !

Citește mai mult

  • Număr camere
    6
  • Dormitoare
    4
  • Număr bucătării
    2
  • Număr băi
    4
  • Geam la baie
    Da
  • Număr balcoane
    3
  • Număr terase
    1
  • Număr locuri parcare
    2
  • Disponibilitate
    Imediat
  • Tip casă
    Individual
  • Stare interior
    Finisat clasic
  • Suprafață utilă
    331.46 mp
  • Suprafață construită
    14 mp
  • Suprafață construită la sol (Amprentă)
    149.0 mp
  • Suprafață teren
    420 mp
  • Suprafață curte
    420 mp
  • Suprafață curte liberă
    271 mp
  • Suprafață terasă
    16 mp
  • Deschidere
    14 m
  • Acoperiș
    Țiglă
  • Stadiu construcție
    Finalizată
  • An construcție
    2001
  • Construcție nouă
    Da
  • Tip construcție
    Cărămidă
  • Număr etaje clădire
    1
  • Număr subsoluri
    1
  • Are demisol
    Da
  • Are pod
    Da

Facilități

Acoperiș
Aer condiționat
Apă
Apometre
Aragaz
Bideu
Boxă la subsol
Bucătărie deschisă
Bucătărie închisă
Bucătărie mobilată
Bucătărie utilată
Cabină de duș
Cadă
Calorifere
Canalizare
CATV
Centrală proprie
Contor electric
Contor gaz
Curent
Curent trifazic (380V)
Curte
Debara
Dressing
Duș exterior
Ferestre PVC
Frigider
Gaz
Geamuri cu protecție UV
Geamuri termopan
Grădină proprie
Gresie
Hotă
Iluminat stradal
Interfon
Internet
Izolație exterioară
Jacuzzi
Mașină de spălat rufe
Mașină de spălat vase
Mijloace de transport în comun
Mobilat complet
Panouri solare
Parcare deschisă
Pivniță
Scară interioară
Sistem de alarmă
Spălătorie
Spații agrement
Străzi asfaltate
Supraveghere video
Telefon
TV
Ușă intrare PVC
Uși interior lemn
Vopsea lavabilă
WC Serviciu
Wireless
Dorel Lacatus - Silver Imobiliare
Dorel Lacatus
Senior Broker

0770221133


Solicită chiar acum o vizionare
Telefon
Sună acum Solicită vizionare
Necesare:

Site-ul nu poate funcționa corect fără aceste cookie-uri. Vezi cookie-urile

Statistică:

Strângem statistici anonime despre voi, vizitatorii unici, pentru a vă îmbunătăți experiența dumneavoastră. Vezi cookie-urile

Marketing:

Pentru a ne promova mai eficient serviciile noastre, folosim cookies pentru a vă identifica și a vă oferi proprietăți și servicii personalizate. Vezi cookie-urile

Acest site folosește cookies, află detalii. Alege ce tipuri de cookies dorești să permitem: